
Дизайнеры интерьера
0
Дизайн-проект квартиры на Беговой
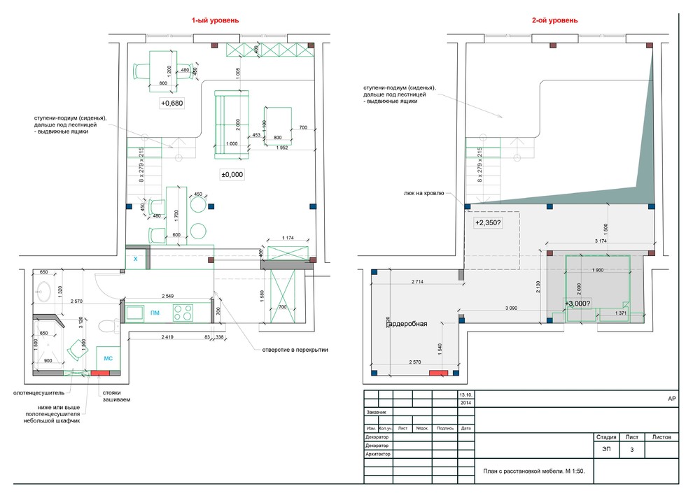
план с указанием мебели и сантехнического оборудования. Общая высота потолка - 4577 см. . Идеальным решением было возвести второй уровень частично! Таким образом мы не поделили окна и оставили в гостиной "воздух"! . Заказчики - люди активные, общительные, гостей у них обычно много! Мы предусмотрели не только диван напротив камина, но и диван в подиуме. . Второй уровень - уединенная зона хозяев. Кровать в зоне спальни поднята на подиум, который выполняет две функции: 1. На первом этаже конструкция позволяет поднять потолок на 60 см. выше, что обеспечивает свободный и удобный проход в квартиру. 2. Сбоку подиум оснащен выдвижными ящиками для постельного белья.
Другие фотографии в проекте
Вопросы к фото 0
Задайте вопрос
Вам ответят эксперты. Пришлем уведомление, когда вам ответят




