
Дизайнеры интерьера
0
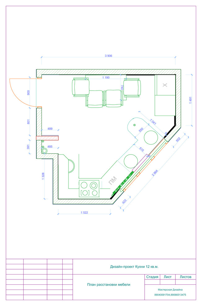
Дизайн-проект кухни 12 кВ.м с нестандартной планировкой
Семейная пара получила долгожданные ключи от новой квартиры и решили обратиться за нашей помощью по созданию дизайна кухни. Мы учли все пожелания клиентов, сделали в двух вариантах оформления стен и уложились в неделю, включая бесплатный замер и расстановку мебели! Клиенты получили распечатанный дизайн-проект, со всеми чертежами, визуализациями, развёртками и спецификацией материалов и мебели.
Другие фотографии в проекте
Вопросы к фото 0
Задайте вопрос
Вам ответят эксперты. Пришлем уведомление, когда вам ответят




