
Дизайнеры интерьера
4.64
·
11 отзывов
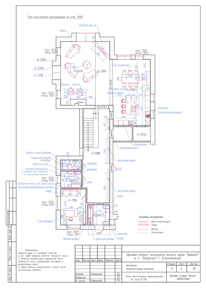
Дизайн-проект интерьера жилого дома "Байкал" в п. "Экодолье" г. Екатеринбург
План расстановки оборудования . Автор: Сафронова
Другие фотографии в проекте
Вопросы к фото 0
Задайте вопрос
Вам ответят эксперты. Пришлем уведомление, когда вам ответят




