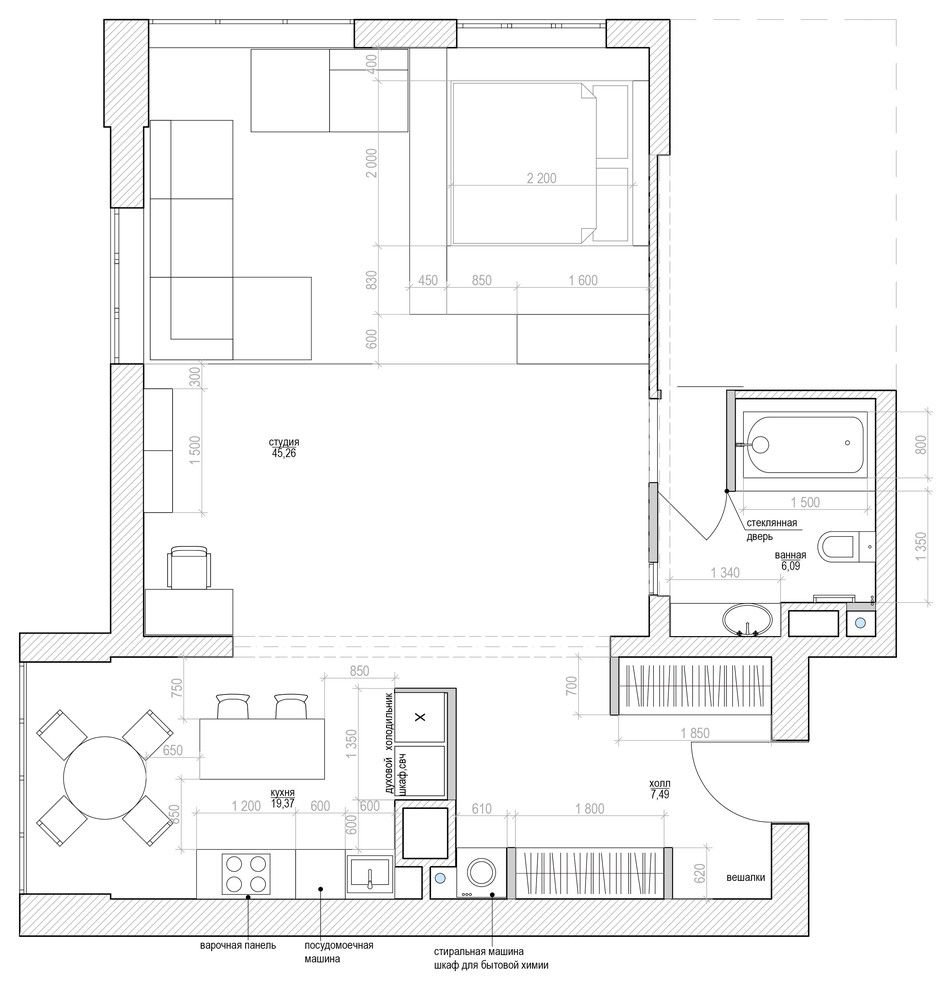
дизайн квартиры 74м2

Вопросы к фото 0

Задайте вопрос

Вам ответят эксперты. Пришлем уведомление, когда вам ответят

Concept, Home, decor, design, flat, furniture, home decor, interior, interior decor, living roome, room, spase, style