
Дизайнеры интерьера
5
·
10 отзывов
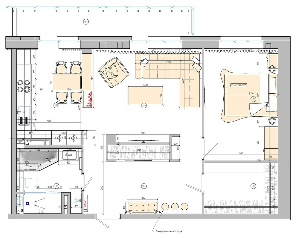
Дизайн интерьера двухкомнатной квартиры в новостройке по ул. Калинина
Интерьер разрабатывался для семьи из 2-х человек. Планировка квартиры после сдачи дома не устраивала заказчиков. Для комфортного проживания переделали планировочное решение, соблюдая нормы и правила. . Несущая колонна посреди квартиры стала отправным элементом, вокруг которой и выстраивались новые оси квартиры. Увеличили площадь гостиной, избавившись от узкого коридорчика. Немного уменьшили спальную комнату за счет организации отдельной гардеробной комнаты. Несущую колонну завязали в композиционный центр, отделяющий прихожую от гостиной. В конструкцию включили шкаф для хранения одежды, телевизионную аппаратуру и мебель, а также стеллаж для милых вещиц и сувениров. Кухню от гостиной отделяет многофункциональный стеллаж с мебельными полками и встроенным камином с эффектом живого пламени.
Другие фотографии в проекте
1 раз сохранено в статьи и альбомы идей:
Добавил(-а) в альбом: кухни
Вопросы к фото 0
Задайте вопрос
Вам ответят эксперты. Пришлем уведомление, когда вам ответят




