
Дизайнеры интерьера
5
·
18 отзывов
Дизайн двухкомнатной квартиры в Химках
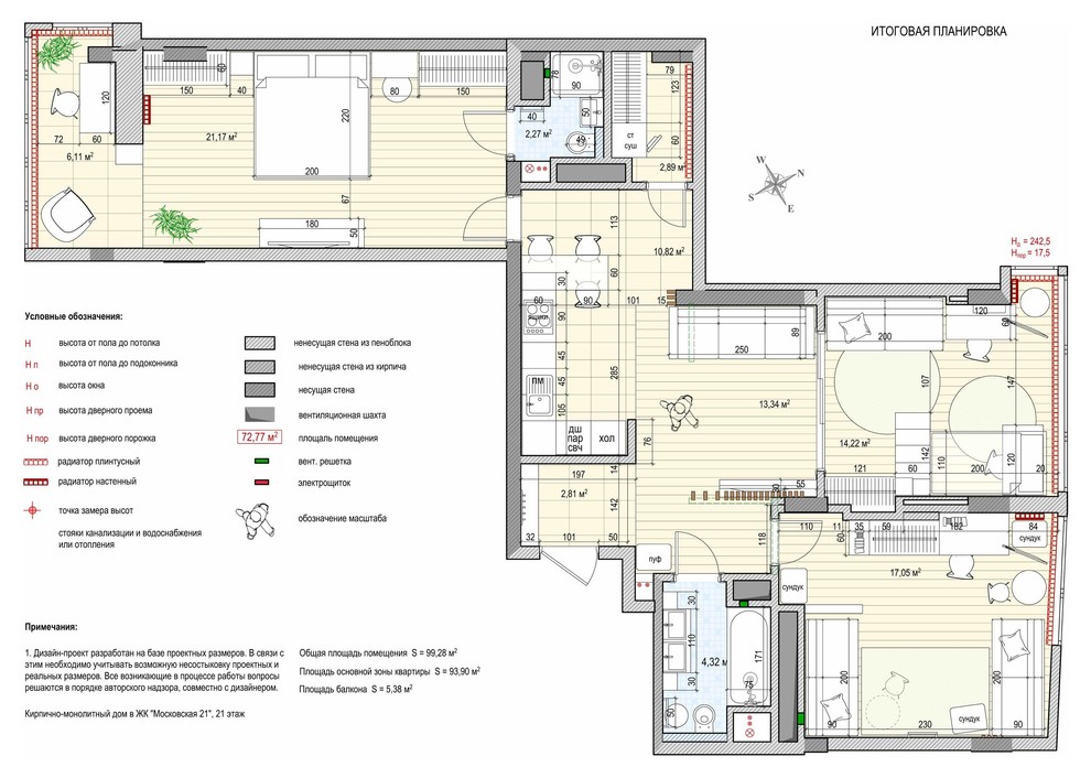
Взамен просторного холла и темного коридора устроена кухня-гостиная, отделенная от прихожей стеной и декоративной реечной перегородкой, на которую подвешен телевизор. Кухонная мебель и техника получили Г-образную расстановку, с полубарной столешницей с одного конца, заменившей обеденный стол. В гостевой зоне установлен диван. От комнаты девочек кухня-гостиная отделена матовыми стеклянными перегородками, что позволило улучшить инсоляцию этой части квартиры. . В комнате сестер вдоль одной стены установлена кровать и обустроено рабочее место для старшей дочери, вдоль другой – чердачная кровать с рабочей зоной под ней для младшей дочери, а также платяной шкаф. Дополнительные места для хранения обеспечивают ниши с полками, ящики в ступеньках лестницы и небольшой шкафчик под чердачной кроватью. Комната для мальчиков заняла пространство бывшей кухни, по одной стене здесь разместились платяной шкаф с книжным стеллажом и рабочее место старшего сына; рядом установлен игровой столик младшего. По другой стене, помимо спортивного уголка, расположены две кровати сыновей, одна из которых огорожена от другой перегородкой-стеллажом. Рядом с детской мальчиков размещена вторая ванная комната.
Другие фотографии в проекте
Вопросы к фото 0
Задайте вопрос
Вам ответят эксперты. Пришлем уведомление, когда вам ответят




