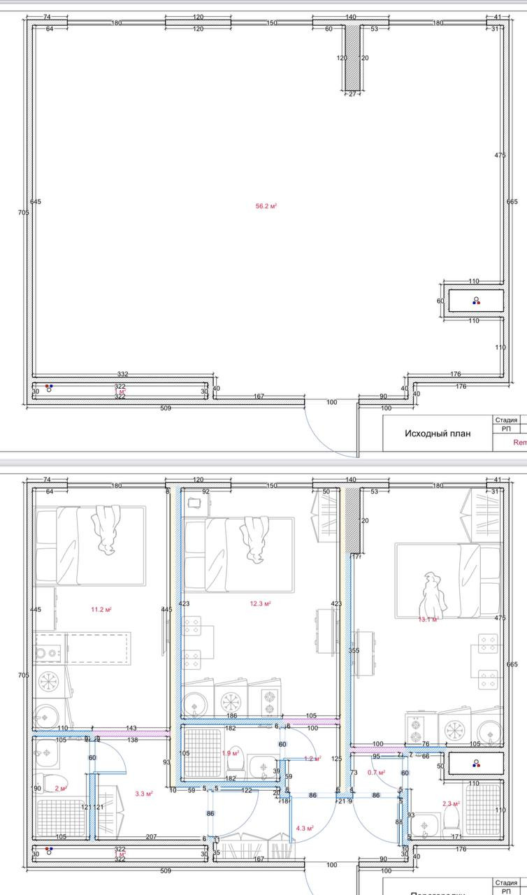
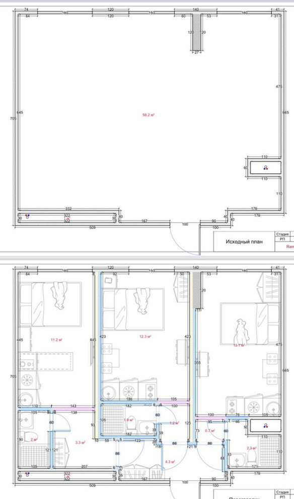
Деление на 3 студии квартиры 55 м2

Другие фотографии в проекте Деление на 3 студии квартиры 55 м2

Вопросы к фото 0

Задайте вопрос

Вам ответят эксперты. Пришлем уведомление, когда вам ответят

Контемпорари