
Дизайнеры интерьера
0
#Cozy&Bright
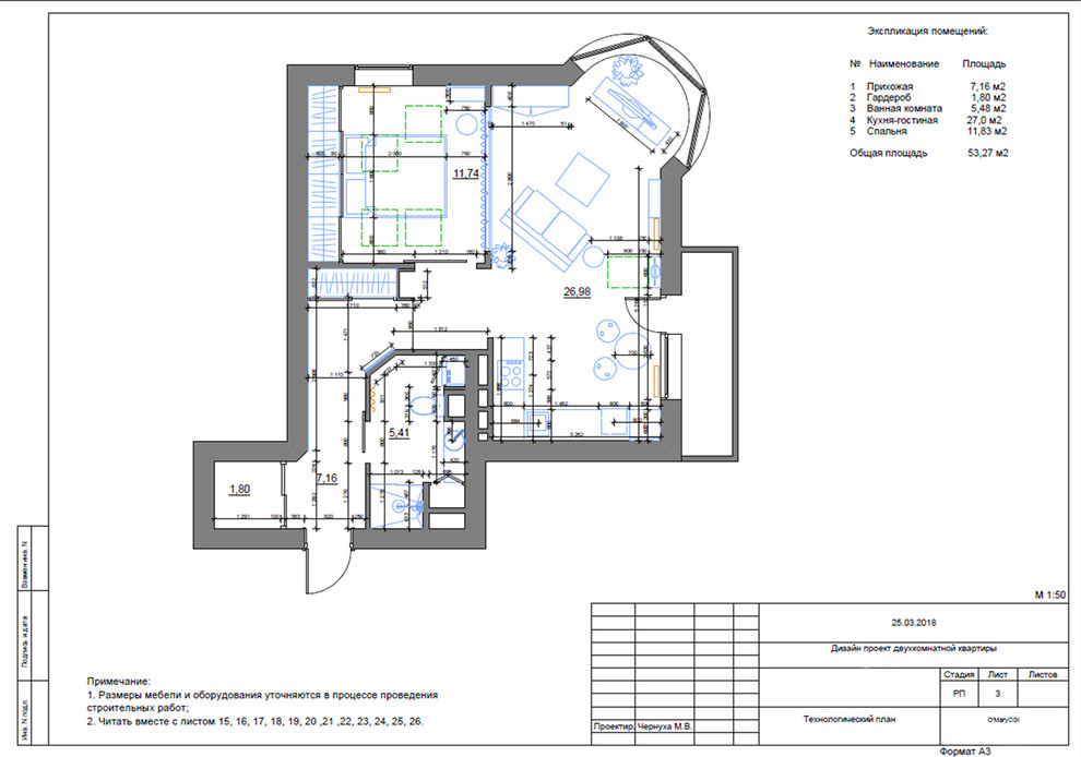
В целом было 5 различных вариантов перепланировки, с разнообразным зонированием. Но после продолжительных обсуждений остановились на самом простом в реализации варианте - немного сдвинуть перегородку, отделяющую спальню от гостиной, расширив площадь спальни; заменить эту же перегородку на светопрозрачную конструкцию. А так же передвинули перегородку между коридором и ванной комнатой, что позволило обустроить строительным методом гардероб и книжный стеллаж. Эркер несет функцию зимнего сада - деревца в кадках обрамляют тумбу под ТВ из Икеи. Окна оформили ролетами блэк-аут. . . Мария Чернуха - дизайн интерьера и визуализация.
Другие фотографии в проекте
Вопросы к фото 0
Задайте вопрос
Вам ответят эксперты. Пришлем уведомление, когда вам ответят




