logo
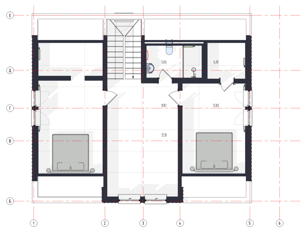
План 2 этажа

Другие фотографии в проекте Беличье 220

Вопросы к фото 0

Задайте вопрос

Вам ответят эксперты. Пришлем уведомление, когда вам ответят

Двухэтажный дом, Санкт-Петербург, Скандинавский, архитектурный проект, деревянный фасад, каркасный дом, конструктивный проект, проект дома, скандинавский стиль

Алексей Гусев

Алексей Гусев

Архитекторы

Смотреть профиль

0

отзывов

0

Рейтинг

Беличье 220

Заказчик заранее выбрал образ фасада своего дома. Этот стиль можно определить, как американский фермерский дом, с оттенком стиля Барн-хаус. Дом должен был давать ощущение покоя и незыблемости. Для этого мы выбрали симметричную композицию, пирамидальной формы, благодаря большой крыше мансардного этажа. Состояние покоя и основательности усиливается большими вертикальными окнами, какие использовались в дорогих домах 19-го века. . Мы учли все пожелания заказчика и добавили к проекту еще 2 варианта цветового решения фасада. Таким образом он смог утвердиться в своем выборе графитовых стен в комбинации с цветом теплой и яркой охры для карнизов, рам и других деталей фасада. Графитовый цвет стен и крыши успокаивает, делая дом более заземленным. Охра, с оранжевым оттенком, оживляет и придает дому выразительный объем. .

Вопросы к фото 0