Сначала новые
Вам ответят эксперты. Пришлем уведомление, когда вам ответят
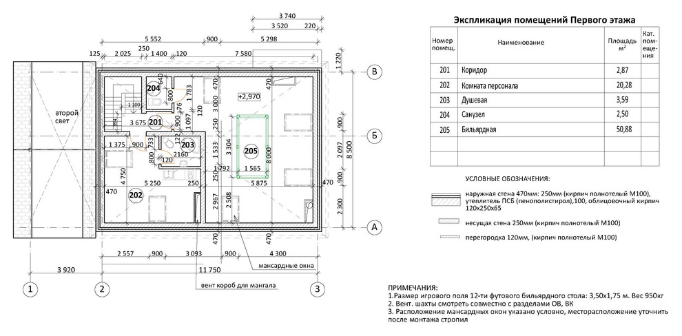
Банный комплекс, Средиземноморский, Фасады, баня, картинки, мангал, остекление, планы этажей, проект, раздвижные двери, чертежи
Elena Monten
Архитекторы
3
отзыва
5
Рейтинг
Средиземноморский
Елена Запонова