
Архитекторы
5
·
10 отзывов
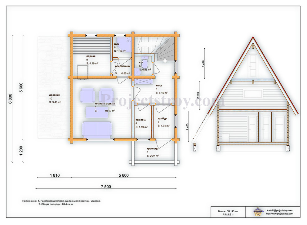
Баня из профилированного бруса 145 мм с чердачным этажом
Необычная баня с небольшими комнатами на чердачном этаже. . Сруб из профилированного бруса 145х(h)145 мм.
Другие фотографии в проекте
Вопросы к фото 0
Задайте вопрос
Вам ответят эксперты. Пришлем уведомление, когда вам ответят


