
Дизайнеры интерьера
4.64
·
10 отзывов
Ballet Home (3D-проект)
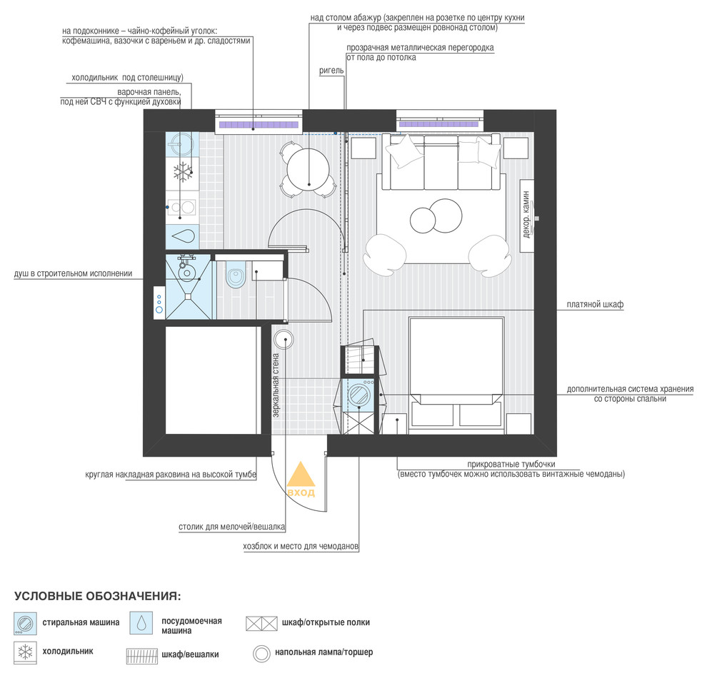
Квартира находится в старом доме в центре Москвы и предназначена для краткосрочной аренды. Общая площадь 30 квадратных метров, высота потолков 3,2 метра. Будущие жильцы (гости) - турсисты со всех уголков мира. Хозяйка квартиры, Юля, является хостом airbnb и большой любительницей балета, что и повлияло на выбор темы для интерьера. . . Основной задачей было создание недорогого в реализации, легкого в уходе и при этом уютного, функционального живописного пространства, дополняющего образ города за окном. . . Визуально единое жилое пространство однокомнатной квартиры поделено на небольшую кухню (отделенную прозрачной перегородкой), зону гостиной и спальную зону. . . В кухне есть все необходимое для готовки: СВЧ, плита, холодильник, посудомоечная машина. В шкафу в прихожей прячется стиральная машинка, которая специально приподнята на высоту 80 см от пола, чтобы под ней поместились чемоданы гостей и обувь, также в шкафу в прихожей выделено место под пылесос, стремянку, утюг. Со стороны гостиной разместился небольшой платяной шкаф, а со стороны спальни на антресолях организована система хранения для редко используемых вещей. . . В прихожей висит грифельная доска, на которой можно оставлять записки-приветствия для гостей, пароли WI-FI. На полке под доской стоят путеводители и открытки. . .
Другие фотографии в проекте
Вопросы к фото 0
Задайте вопрос
Вам ответят эксперты. Пришлем уведомление, когда вам ответят




