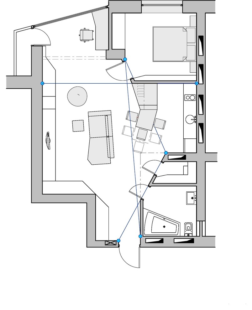
Apartment for Classmate

Другие фотографии в проекте Apartment for Classmate

Вопросы к фото 0

Задайте вопрос

Вам ответят эксперты. Пришлем уведомление, когда вам ответят

apartment, contemporary, design, drawing, flat, interior, plan