logo
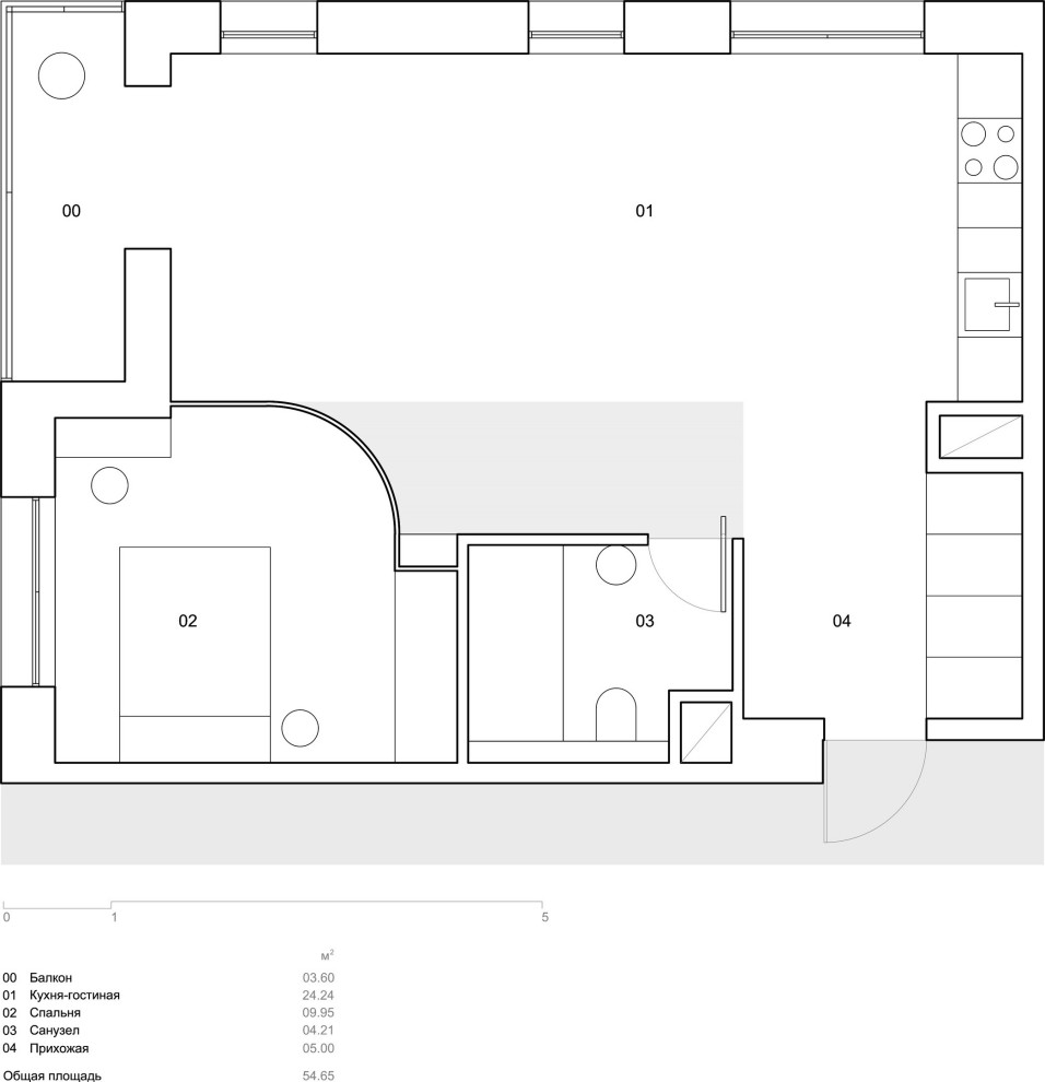
План
Pogodin Rogov Group

Pogodin Rogov Group

Дизайнеры интерьера

5

·

10 отзывов

Другие фотографии в проекте

Вопросы к фото 0

Задайте вопрос

Вам ответят эксперты. Пришлем уведомление, когда вам ответят