Апартаменты ЗИЛ (Apartments ZIL)

Другие фотографии в проекте Апартаменты ЗИЛ (Apartments ZIL)

Вопросы к фото 0

Задайте вопрос

Вам ответят эксперты. Пришлем уведомление, когда вам ответят

Москва

Anna Zhalnina

Anna Zhalnina

Дизайнеры интерьера

Смотреть профиль

4

отзыва

5

Рейтинг

Апартаменты ЗИЛ (Apartments ZIL)

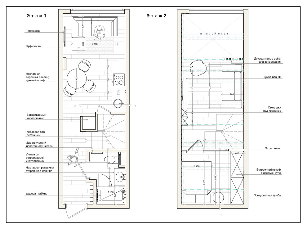
Апартаменты 50 кв м, Москва . Стиль: скандинавский, классический . . Апартаменты находятся в бывшем здании завода ЗИЛ. . Узкое вытянутое помещение 25 кв/м с пятиметровыми потолками. Главной задачей было адаптировать пространство под комфортное жилое помещения для небольшой семьи. В процессе проектирования появился второй уровень квартиры где расположилась небольшая спальня с гардеробом и комната отдыха. На первом уровне удалось вместить кухню- гостиную с обеденным столом и небольшую кладовую под лестницей. . Интерьер решен в светлых цветах для расширения пространства. Лофт разбавлен элементами неоклассики и скандинавии . . Apartment 50 sq m, Moscow . Style: Scandinavian, classic . . The apartments are located in the former building of the ZIL plant. . A narrow elongated room of 25 sq/m with five-meter ceilings. The main task was to adapt the space into a comfortable living space for a small family. During the design process, a second level of the apartment appeared where there was a small bedroom with a wardrobe and a relaxation room. On the first level we managed to accommodate a kitchen-living room with a dining table and a small storage room under the stairs. . The interior is designed in light colors to expand the space. The loft is diluted with neoclassical and Scandinavian elements

Вопросы к фото 0