
Дизайнеры интерьера
0
"Акварельная драма" - квартира с яркой индивидуальностью
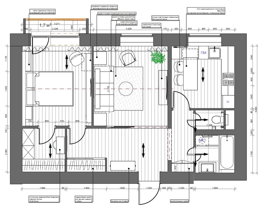
Небольшая квартира в центре Москвы. . Проект реализован
Другие фотографии в проекте
24 раза сохранено в статьи и альбомы идей:
Добавил(-а) в альбом: Идеи пользователя jenny_smile79
Добавил(-а) в альбом: планировки
Добавил(-а) в альбом: Планировки
Вопросы к фото 0
Задайте вопрос
Вам ответят эксперты. Пришлем уведомление, когда вам ответят




