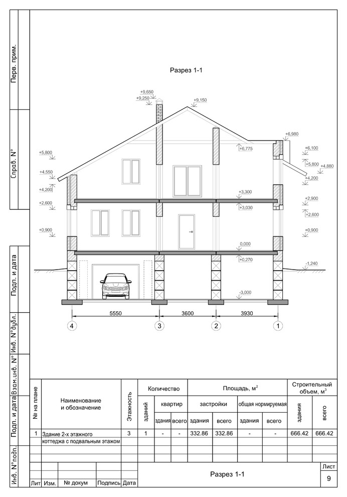
2-х этажный жилой дом с подвалом
Андрей

Андрей

Проектирование и строительство

5

·

10 отзывов

Другие фотографии в проекте

Вопросы к фото 0

Задайте вопрос

Вам ответят эксперты. Пришлем уведомление, когда вам ответят