Интерьер 3-х комнатной квартиры
Екатерина Щелокова

5

·

10 отзывов

11. Интерьер 3-х комнатной квартиры

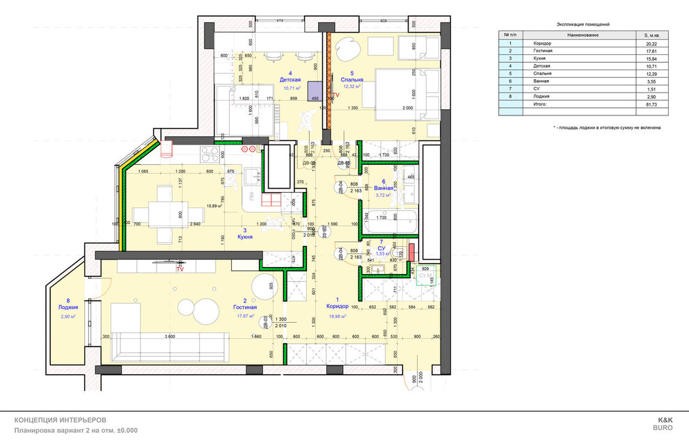
Начало проектирования май 2018 г. / реализация 2018 г. . Эскизный проект. Рабочий проект. Реализация . Площадь 81,5 м.кв. . Квартира проектировалась для молодой семьи с ребенком (мальчик 4х лет). Главной просьбой заказчика было большое количество мест для хранения вещей, при расчете, что площади каждой спальни 11 м.кв., кухни 12 м.кв. Ситуацию отягощал тот факт, что несущие конструкции дома выполнены из монолитного железо-бетона и расширить пространство не всегда была возможность. Для достижения этих целей мы сделали встроенный шкаф в спальне, перенесли стиральную машину в кладовую в коридоре и перепланировали санузлы, кухню расширили за счет лоджии. В детской запроектировали двухэтажную конструкцию с кроватью наверху, диваном для гостей внизу. шкафами для одежды, ящиками, столом и местом для чтения.

Другие фотографии в проекте

Вопросы к фото 0

Задайте вопрос

Вам ответят эксперты. Пришлем уведомление, когда вам ответят