
Дизайнеры интерьера
5
·
10 отзывов
01
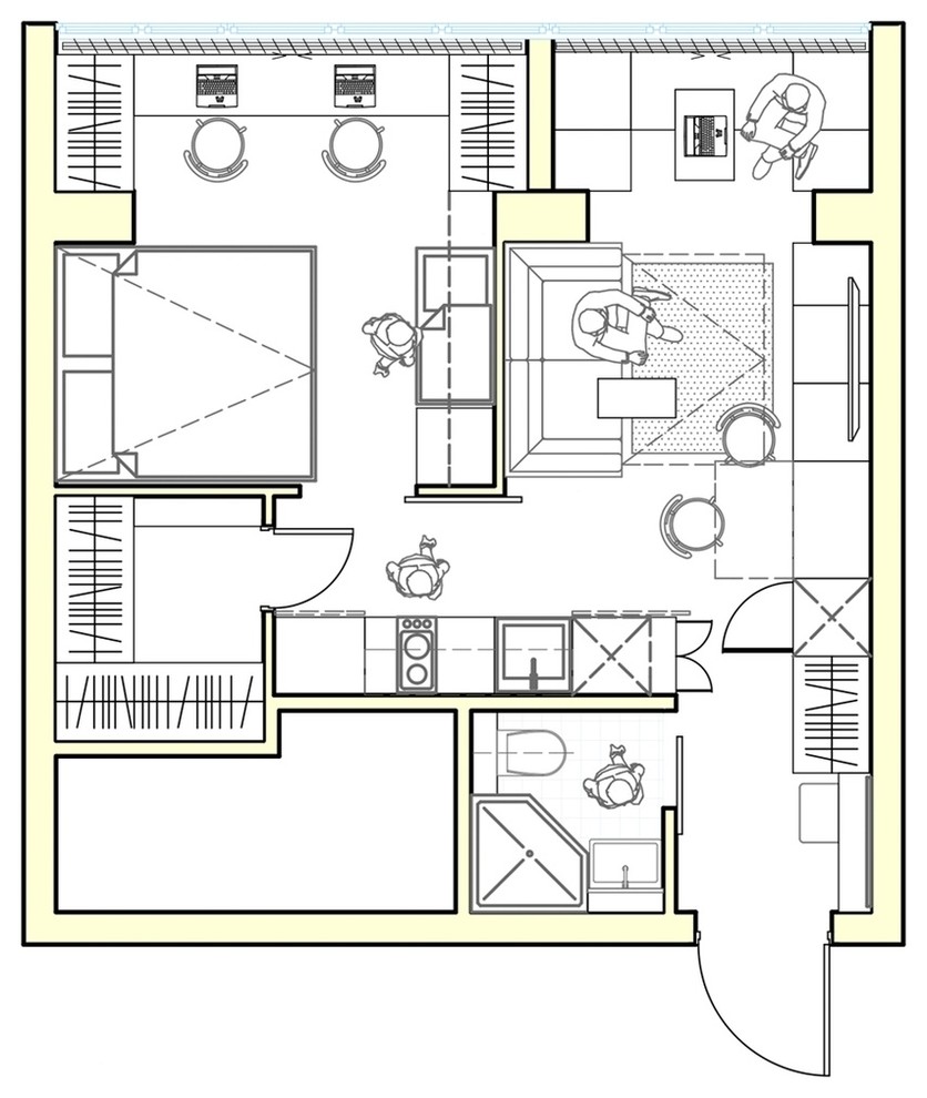
Планировочное решение квартиры студии S=28 м.кв. для супружеской пары. . В будущем планируется появление ребенка.
Вопросы к фото 0
Задайте вопрос
Вам ответят эксперты. Пришлем уведомление, когда вам ответят

Дизайнеры интерьера
5
·
10 отзывов
Планировочное решение квартиры студии S=28 м.кв. для супружеской пары. . В будущем планируется появление ребенка.
Вам ответят эксперты. Пришлем уведомление, когда вам ответят